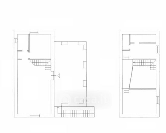
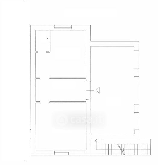
Appartamento in vendita Via dei 3 Casali , Palestrina
Salva
Casa.it
1/47
  • Street View
  • Map