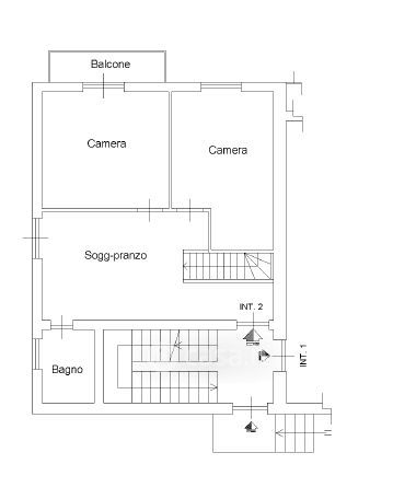
Appartamento in vendita Via Loreto , Palestrina
Salva
Casa.it
1/14
  • Street View
  • Map