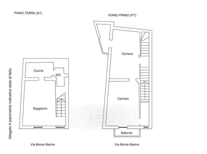
Appartamento in vendita Via Monte Marino 96, Riano
Salva
Casa.it
1/11
  • Street View
  • Map