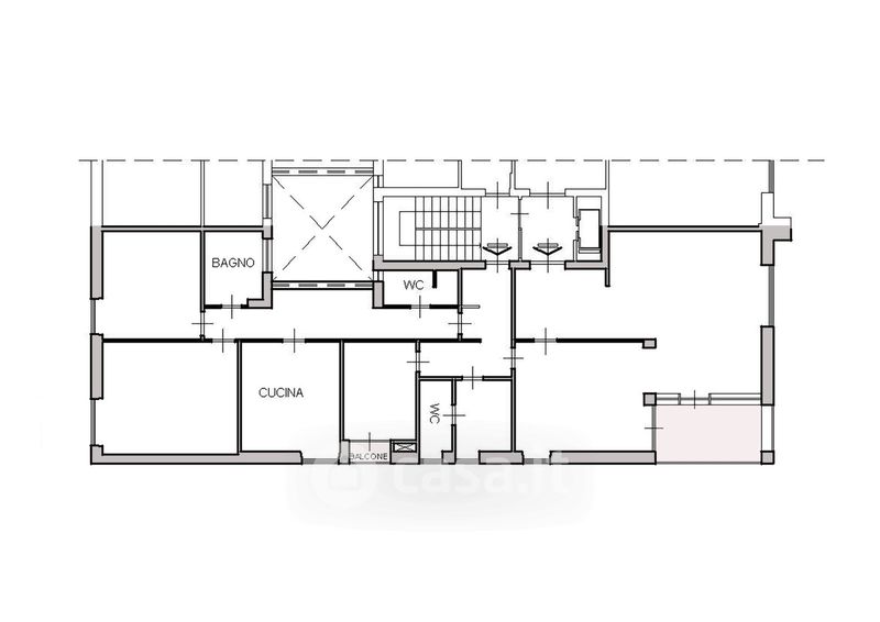
Appartamento in vendita Via della Camilluccia 183, Roma
Salva
Casa.it
1/18
  • Street View
  • Map