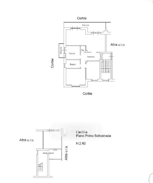
Appartamento in vendita Via Federico Zandomeneghi 44, Roma
Salva
Casa.it
1/25
  • Street View
  • Map