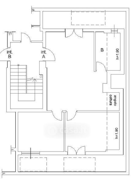
Appartamento in vendita Via del Casale Agostinelli 74, Roma
Salva
Casa.it
1/12
  • Street View
  • Map