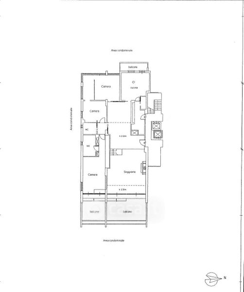
Appartamento in vendita Via Calalzo 51, Roma
Salva
Casa.it
1/37
  • Street View
  • Map