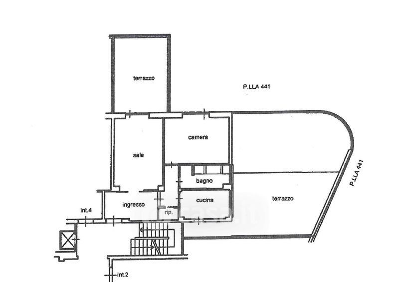
Appartamento in vendita Via Ugo Della Seta , Roma
Salva
Casa.it
1/49
  • Street View
  • Map