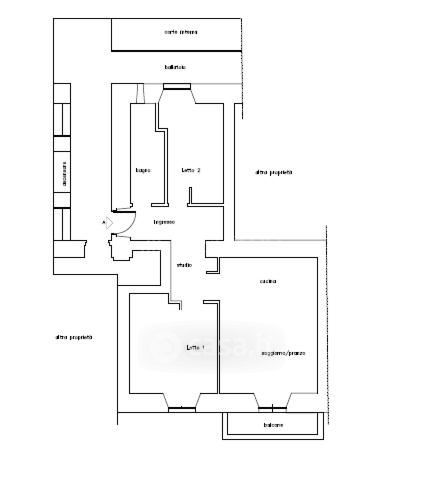
Appartamento in vendita Via Alessandria , Roma
Salva
Casa.it
1/16
  • Street View
  • Map