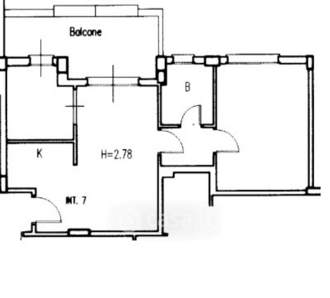
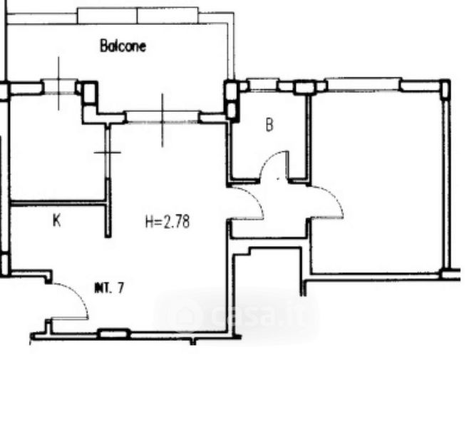
Appartamento in vendita Via Rubra , Roma
Salva
Casa.it
1/14
  • Street View
  • Map