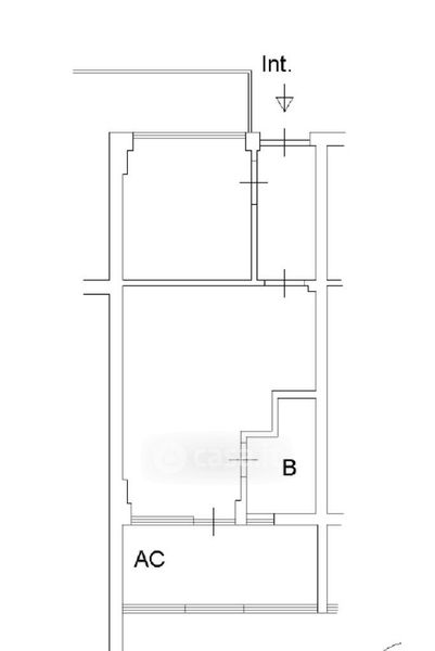
Appartamento in vendita Via Guido Guida 6, Roma
Salva
Casa.it
1/21
  • Street View
  • Map