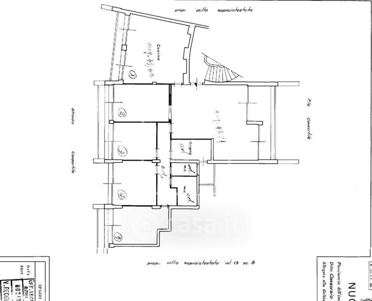
Appartamento in vendita Via Elio Lampridio Cerva 185, Roma
Salva
Casa.it
1/22
  • Street View
  • Map