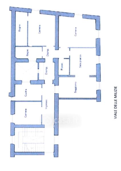
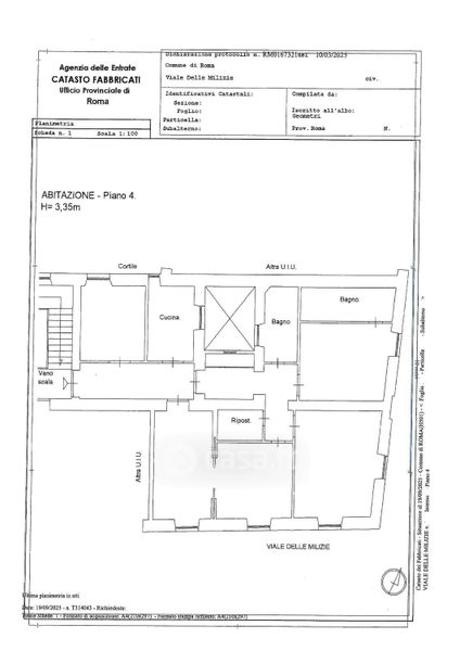
Appartamento in vendita Viale delle Milizie , Roma
Salva
Casa.it
1/34
  • Street View
  • Map