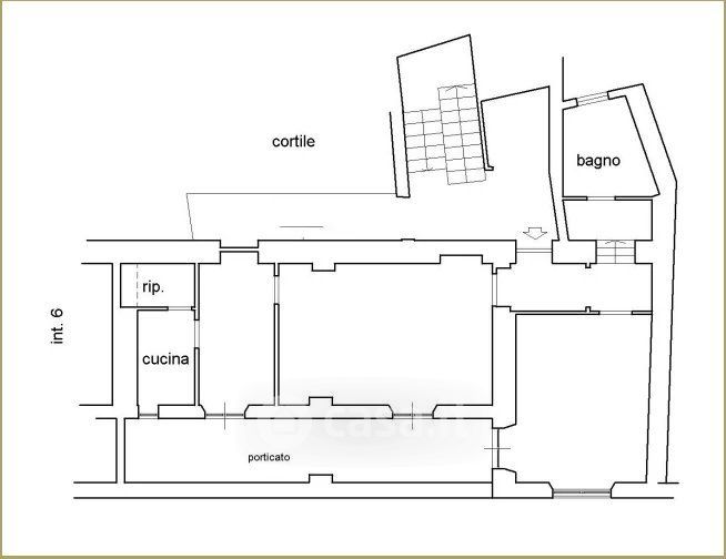
Appartamento in affitto Via di Campo Marzio , Roma
Salva
Casa.it
1/8
  • Street View
  • Map