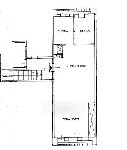
Appartamento in vendita Via Vincenzo Ussani , Roma
Salva
Casa.it
1/25
  • Street View
  • Map