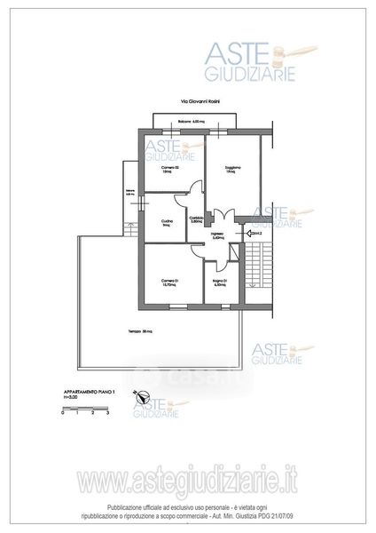
Appartamento in vendita Via Giovanni Rosini 85, Roma
Salva
Casa.it
1/23
  • Street View
  • Map