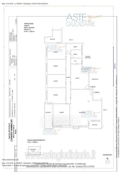
Appartamento in vendita Via Rodolfo Lanciani 69, Roma
Salva
Casa.it
1/8
  • Street View
  • Map