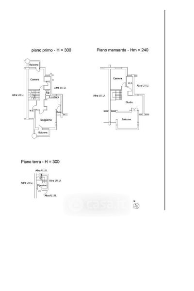
Appartamento in vendita Via Tespi 124, Roma
Salva
Casa.it
1/62
  • Street View
  • Map