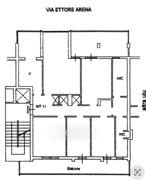
Appartamento in vendita Via Ettore Arena 181, Roma
Salva
Casa.it
1/26
  • Street View
  • Map