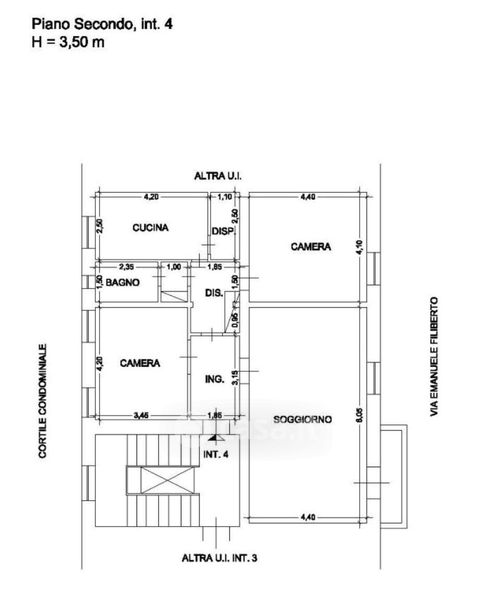
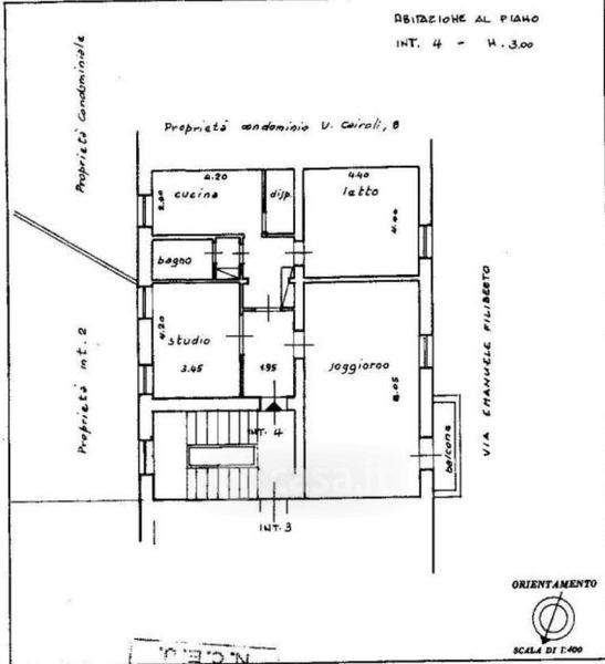
Appartamento in vendita Via Emanuele Filiberto 22, Roma
Salva
Casa.it
1/15
  • Street View
  • Map