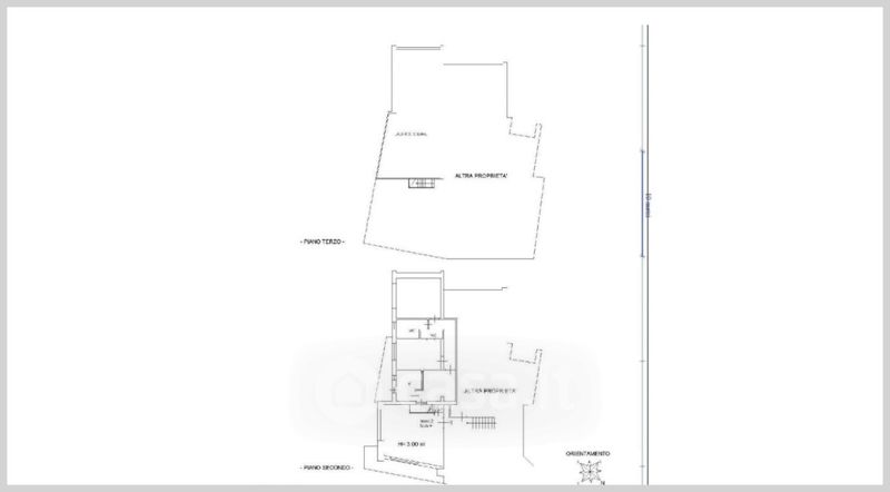
Appartamento in vendita Via Corrado del Greco , Roma
Salva
Casa.it
1/37
  • Street View
  • Map