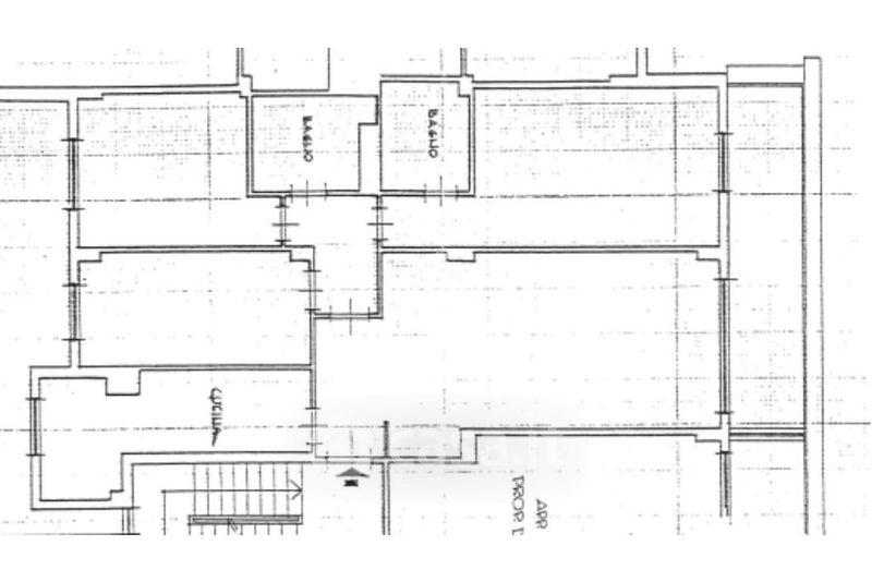
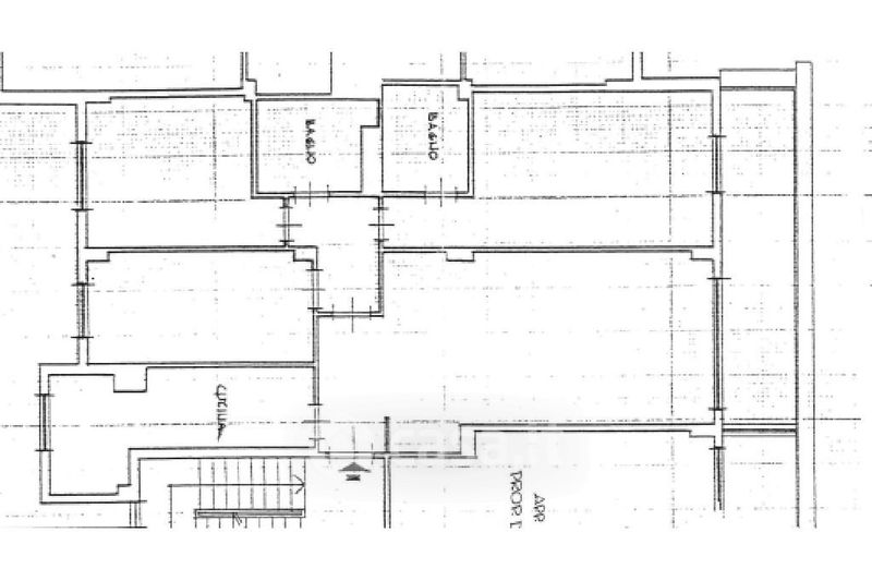
Appartamento in vendita Via Mario Ridolfi 38, Roma
Salva
Casa.it
4/50
  • Street View
  • Map