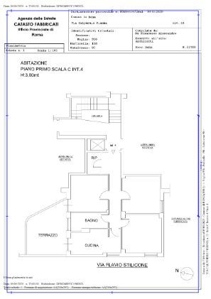
Appartamento in vendita Via Calpurnio Fiamma 33, Roma
Salva
Casa.it
1/22
  • Street View
  • Map