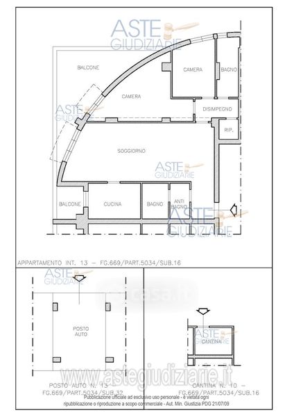
Appartamento in vendita Via Cardinale Luigi Traglia 85, Roma
Salva
Casa.it
1/45
  • Street View
  • Map