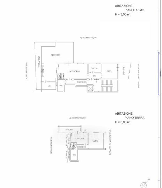
Appartamento in vendita Via Molveno 53, Roma
Salva
Casa.it
1/36
  • Street View
  • Map