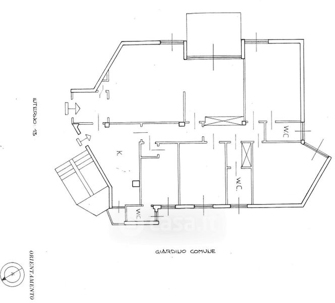
Appartamento in affitto Via Alessandro Fleming , Roma
Salva
Casa.it
1/29
  • Street View
  • Map