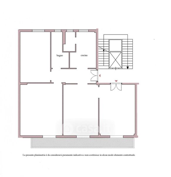
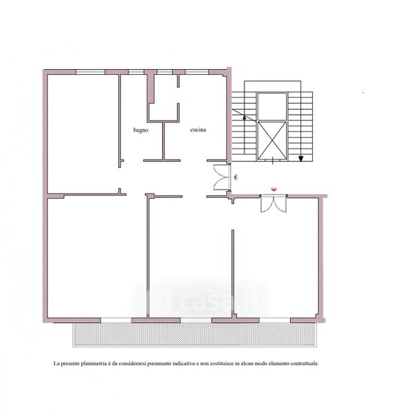
Appartamento in vendita Via Eurialo , Roma
Salva
Casa.it
1/22
  • Street View
  • Map