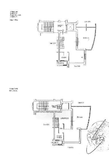
Appartamento in vendita Via Pietro Benedetti 20, Roma
Salva
Casa.it
1/24
  • Street View
  • Map