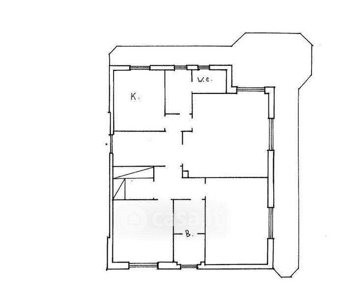
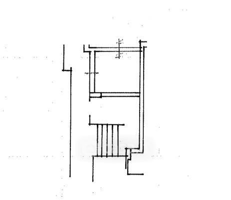
Appartamento in vendita Via Italo Svevo 29, Roma
Salva
Casa.it
1/28
  • Street View
  • Map