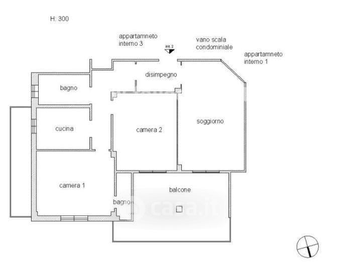
Appartamento in vendita Via dei Bonacolsi 87, Roma
Salva
Casa.it
1/3
  • Street View
  • Map