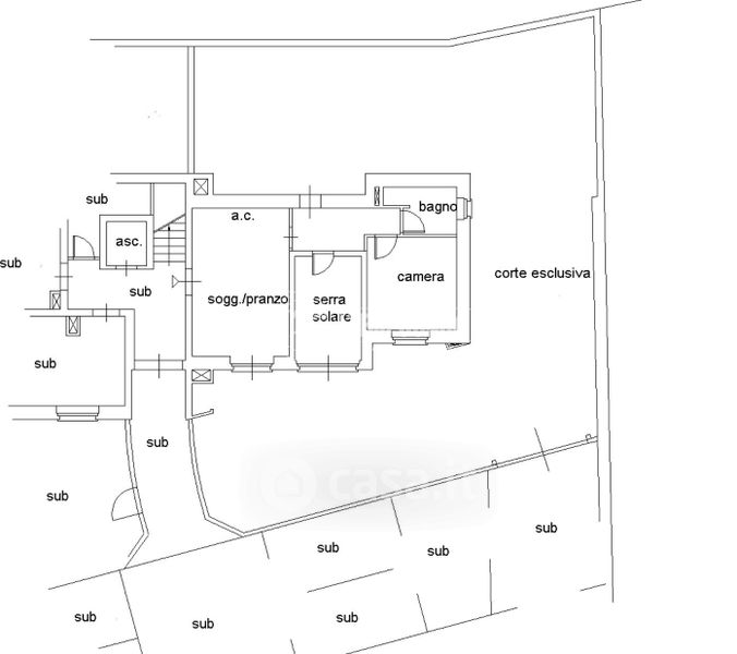
Appartamento in vendita Via di Casal del Marmo 506 c, Roma
Salva
Casa.it
1/28
  • Street View
  • Map