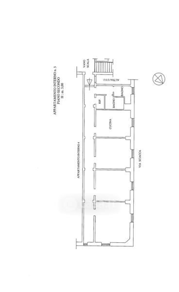
Appartamento in affitto Via Sciacca , Roma
Salva
Casa.it
1/26
  • Street View
  • Map