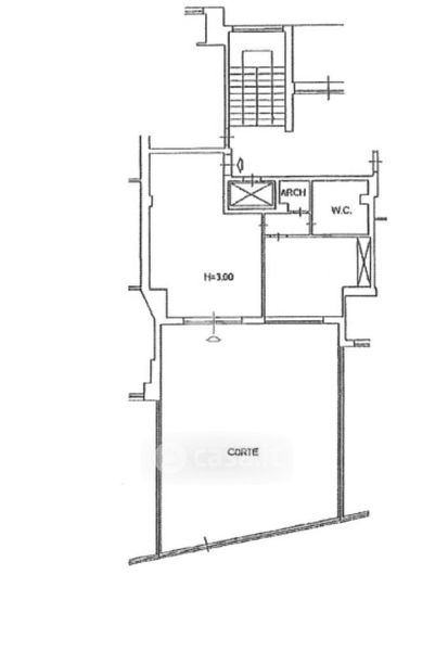
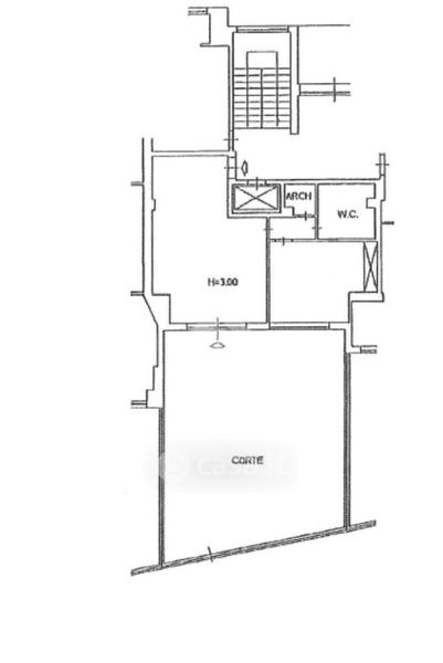
Appartamento in vendita Via Andrea Ferrara 12, Roma
Salva
Casa.it
1/36
  • Street View
  • Map