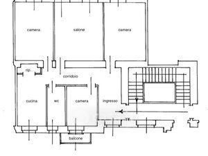
Appartamento in affitto Via Giuseppe Ferrari , Roma
Salva
Casa.it
1/18
  • Street View
  • Map