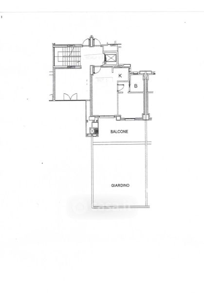
Appartamento in vendita Viale Carmelo Bene 335, Roma
Salva
Casa.it
1/22
  • Street View
  • Map