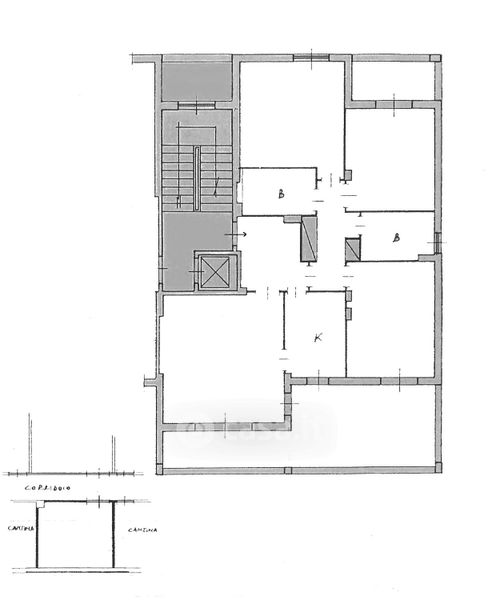
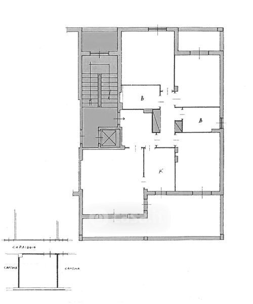
Appartamento in vendita Via Carlo Emilio Gadda , Roma
Salva
Casa.it
1/25
  • Street View
  • Map