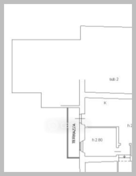
Appartamento in vendita Via Riola Sardo , Roma
Salva
Contatta l'inserzionista
Casa.it