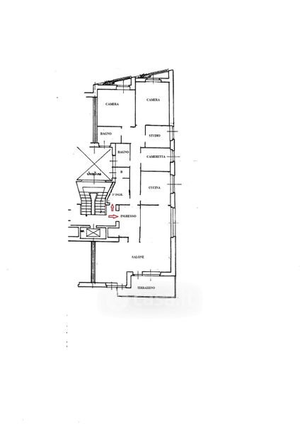
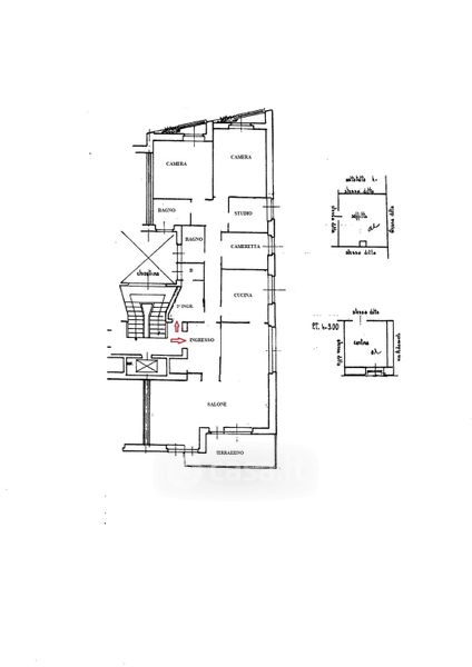
Appartamento in affitto Via Girolamo Segato 29, Roma
Salva
Casa.it
1/27
  • Street View
  • Map