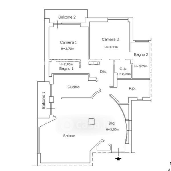
Appartamento in vendita Via Bernardo Blumenstihl 71, Roma
Salva
Casa.it
1/7
  • Street View
  • Map