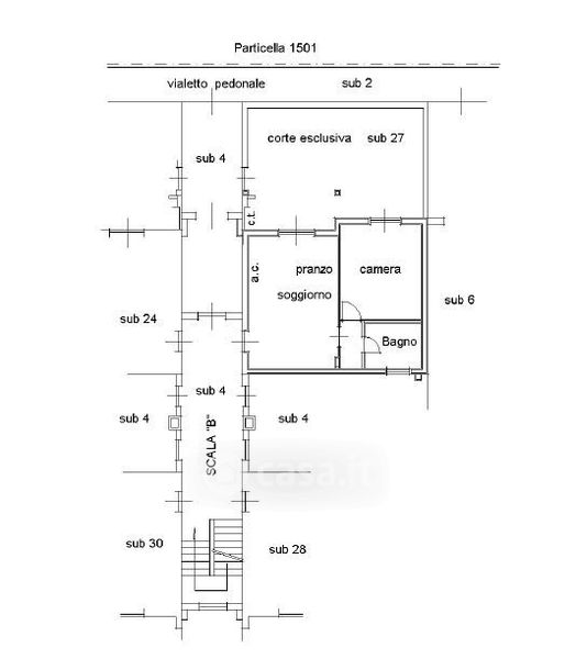
Appartamento in vendita Via Anna Lorenzetto 9, Roma
Salva
Casa.it
1/17
  • Street View
  • Map