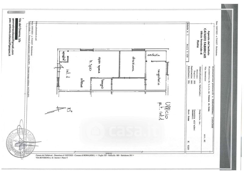
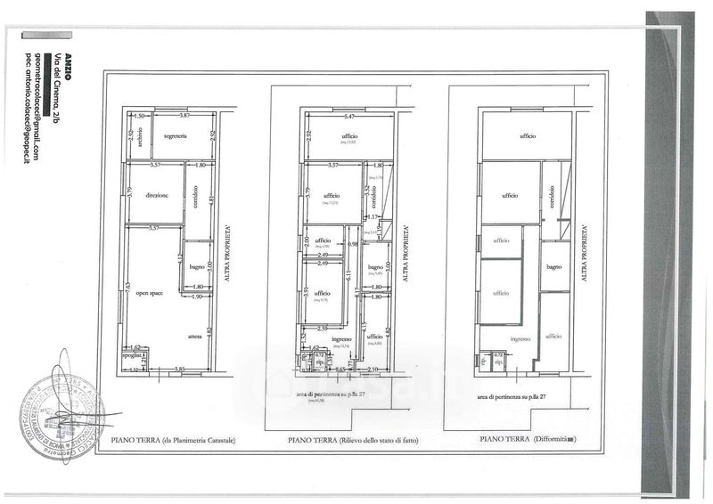
Appartamento in vendita Via Beverino 42, Roma
Salva
Casa.it
1/7
  • Street View
  • Map