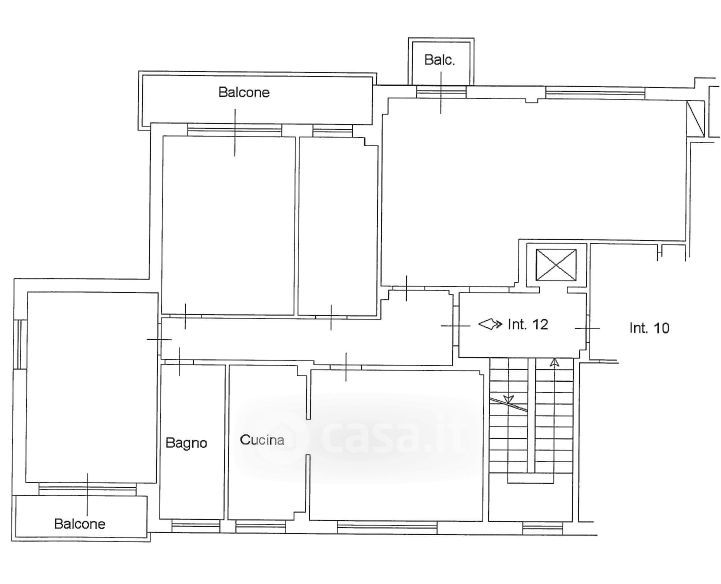
Appartamento in vendita Viale Alessandrino 505, Roma
Salva
Casa.it
1/24
  • Street View
  • Map