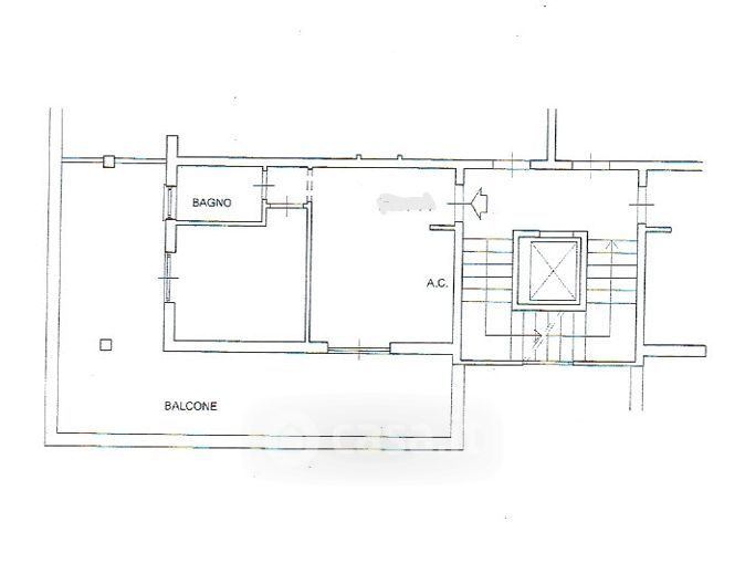
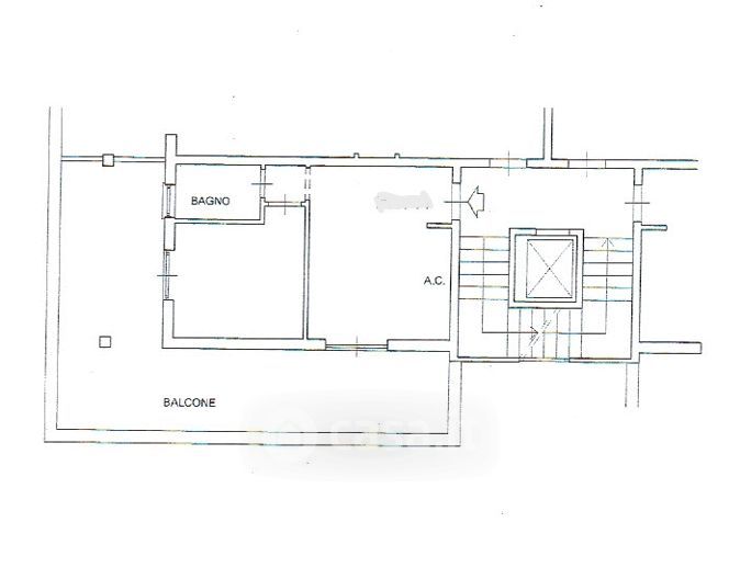
Appartamento in vendita Via dei Faggella , Roma
Salva
Casa.it
1/14
  • Street View
  • Map