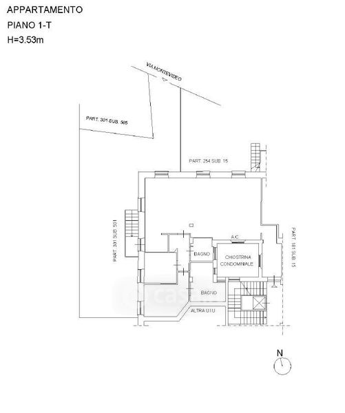
Appartamento in affitto Via Montevideo , Roma
Salva
Casa.it
1/24
  • Street View
  • Map