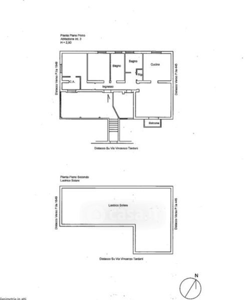
Appartamento in vendita Via Vincenzo Tardani , Roma
Salva
Casa.it
1/10
  • Street View
  • Map