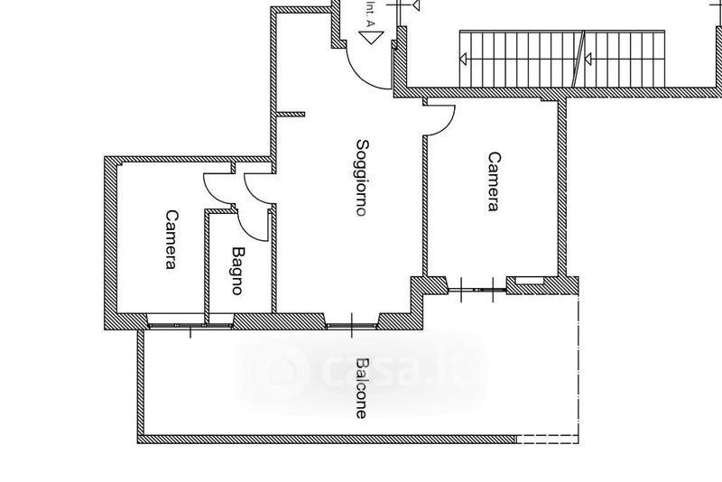
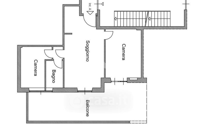
Appartamento in vendita Via di Torrevecchia 127, Roma
Salva
Casa.it
1/30
  • Street View
  • Map