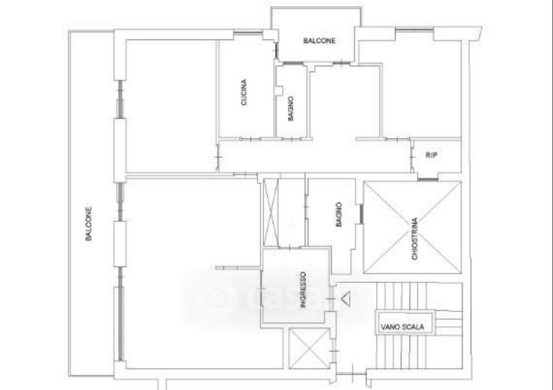
Appartamento in vendita Via Montaione 20, Roma
Salva
Casa.it
1/35
  • Street View
  • Map