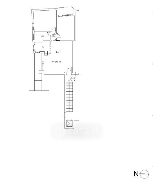
Appartamento in vendita Via Bernardo Davanzati , Roma
Salva
Casa.it
1/20
  • Street View
  • Map