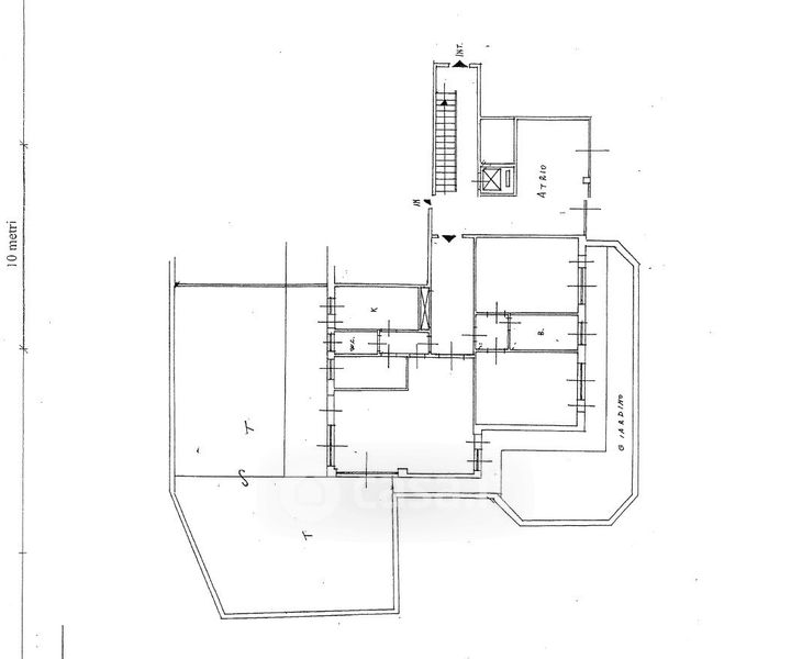
Appartamento in vendita Via Giovanni Giorgi , Roma
Salva
Casa.it
1/60
  • Street View
  • Map