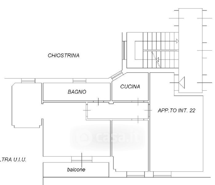
Appartamento in vendita Via Albert Einstein , Roma
Salva
Casa.it
1/32
  • Street View
  • Map